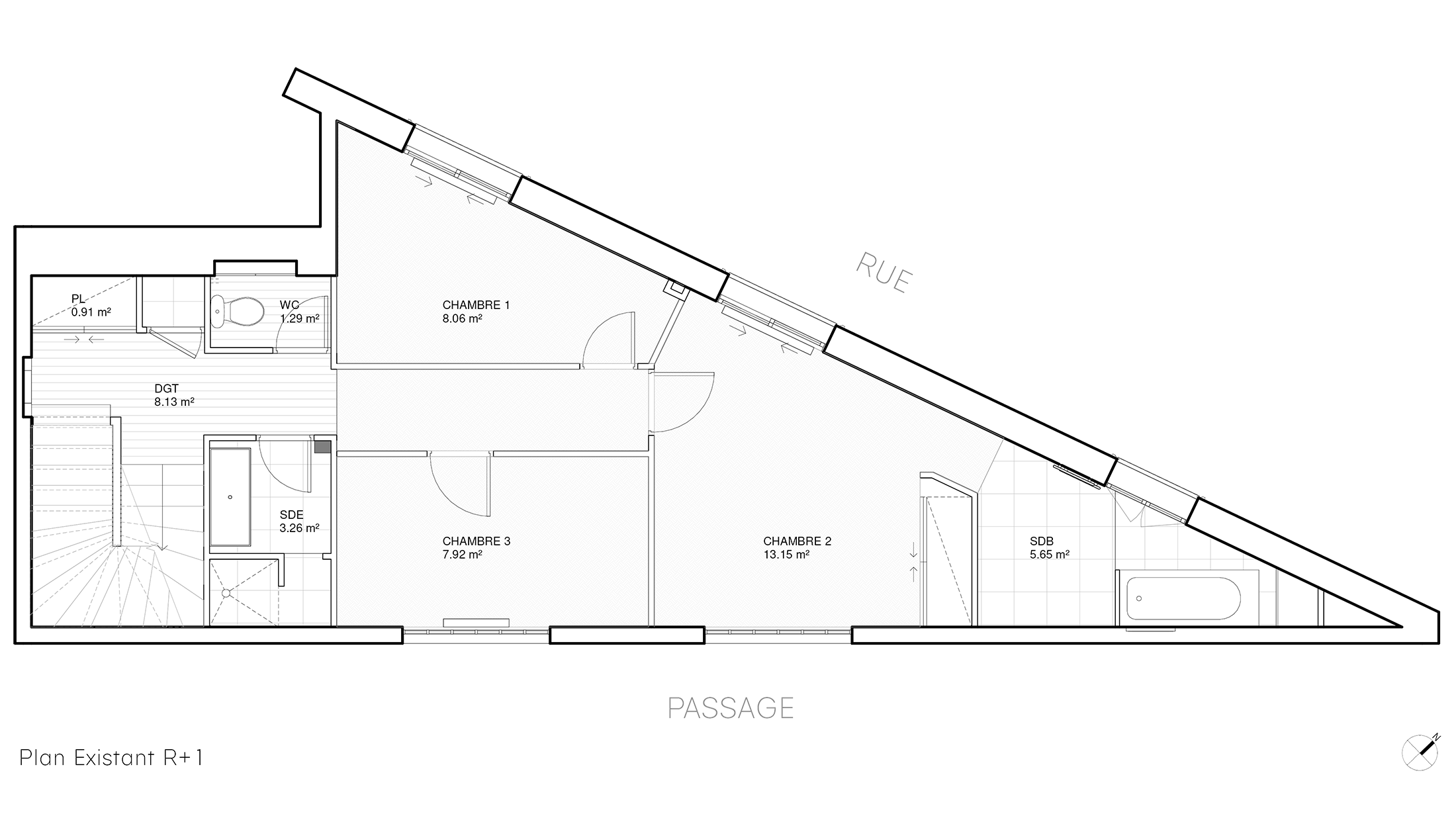
Situé au cœur du 18ème arrondissement de Paris, cet appartement de 110 m² à la géométrie atypique se déploie sur trois niveaux. Sa rénovation vise à répondre aux nouveaux besoins d’une famille, dont les enfants ont grandi, et à offrir à chacun plus de confort.
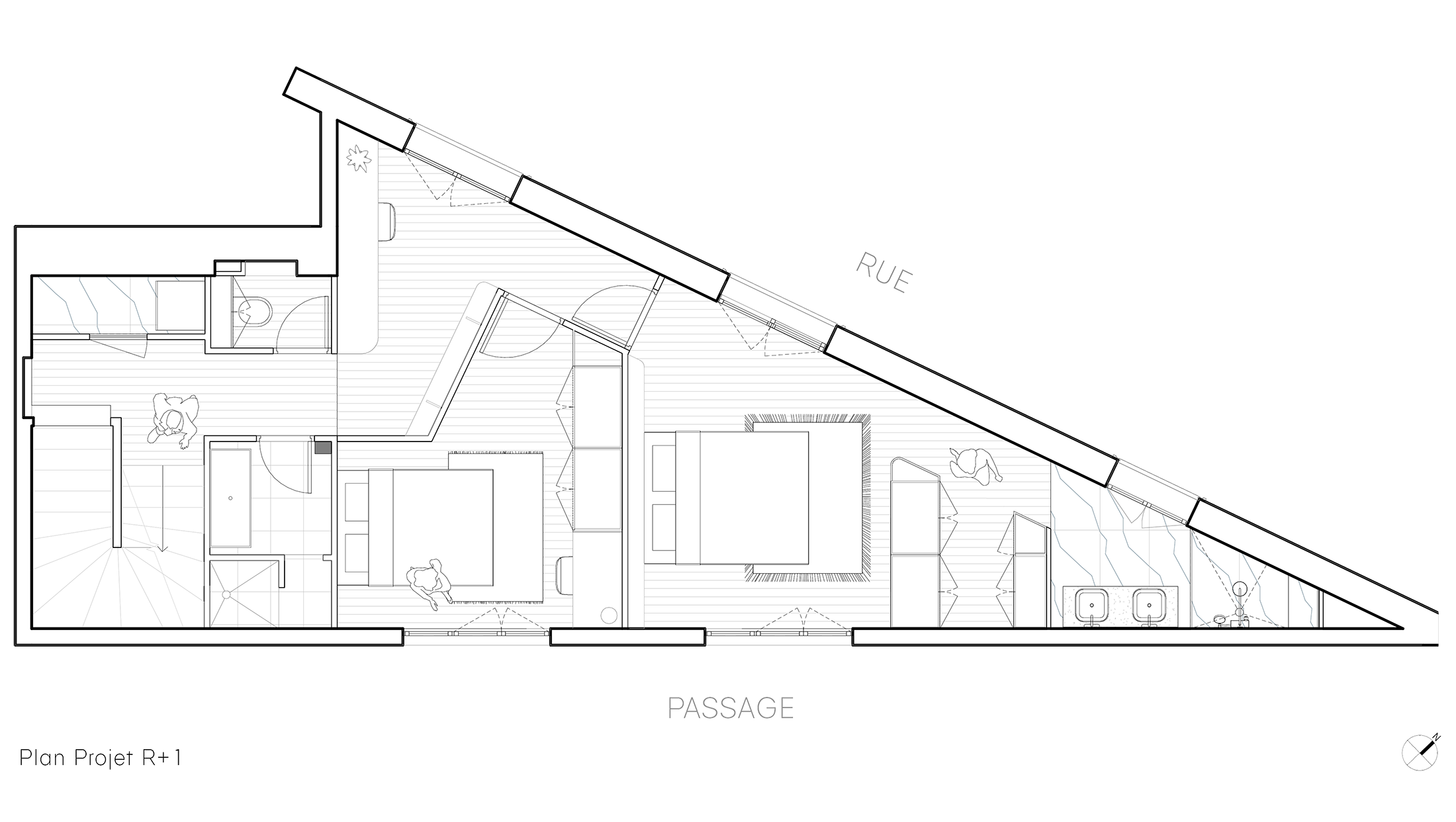
Pour cela, une des chambres a été déplacée au troisième niveau, permettant de réorganiser l’espace nuit en agrandissant les autres chambres et en créant un bureau assorti d’une bibliothèque. La pièce de vie a été aménagée avec sobriété afin de mettre en valeur son volume généreux. La lumière zénithale provenant de la verrière rénovée sublime cette pièce de vie en double hauteur.
La cuisine trouve sa nouvelle place à l’entrée de ce niveau intermédiaire et agit comme point d’articulation entre les nouveaux WC, du rangement, et un accès discret à l’escalier menant à la troisième chambre. La teinte sombre et assumée de ce noyau central confère une touche contemporaine et élégante à ce triplex.
.jpg)
.jpg)
.jpg)
.jpg)
.jpg)
.jpg)
.jpg)
.jpg)
.jpg)
.jpg)
.jpg)
.jpg)
.jpg)
.jpg)
.png)
.png)
.png)
.png)
.png)
.png)