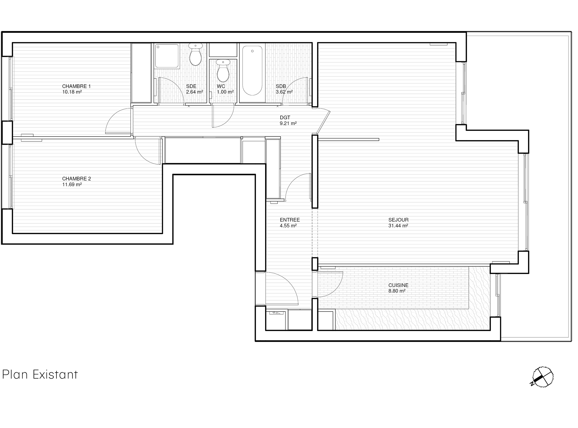
Au cœur de Levallois, cet appartement de 85 m² a été entièrement rénové pour répondre aux envies de renouveau de ses occupants.
L’ouverture de la cuisine sur le séjour amplifie l’apport de lumière naturelle dans la pièce de vie. Alliant fonctionnalité et convivialité, la cuisine parée de façades en noyer devient la pièce maitresse de l’appartement. Une salle d’eau transformée en buanderie optimise l’aménagement tandis que les rangements rénovés sont complétés par des menuiseries sur mesure.
Certains détails d’origine, comme les poignées de placard en noyer et les châssis dorés des fenêtres, ont été préservés et intégrés harmonieusement à l’ensemble du projet de rénovation..
.jpg)
.jpg)
.jpg)
.jpg)
.jpg)
.jpg)
.jpg)
.jpg)
.jpg)
.jpg)
.jpg)
.jpg)
.png)
.png)