Nichée dans un quartier bucolique du Pré-Saint-Gervais, cette maison de 200 m² a été entièrement rénovée. La clé de cette transformation réside dans l’équilibre subtil entre modernisation, rénovation énergétique et mise en valeur de l’existant.
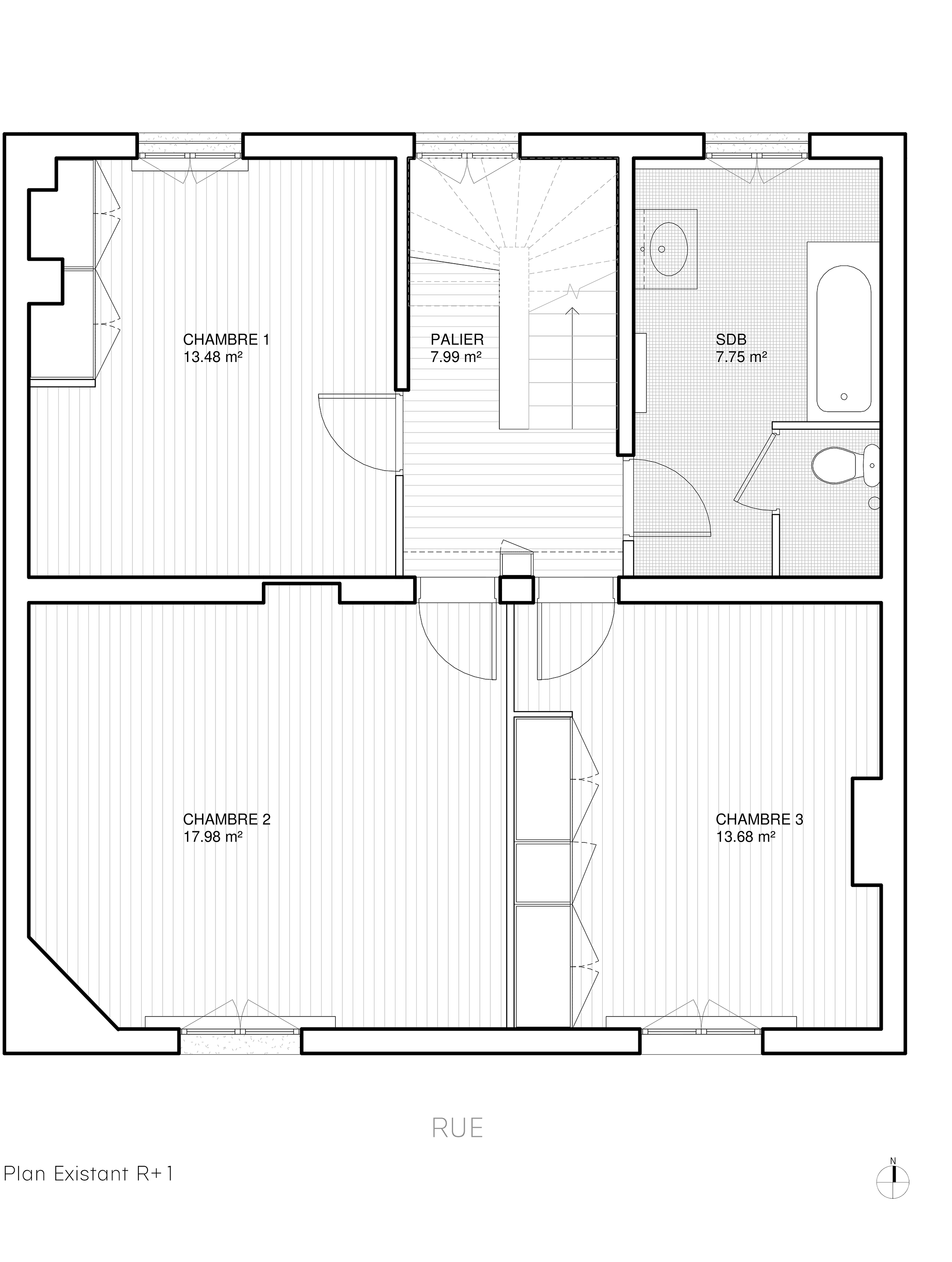
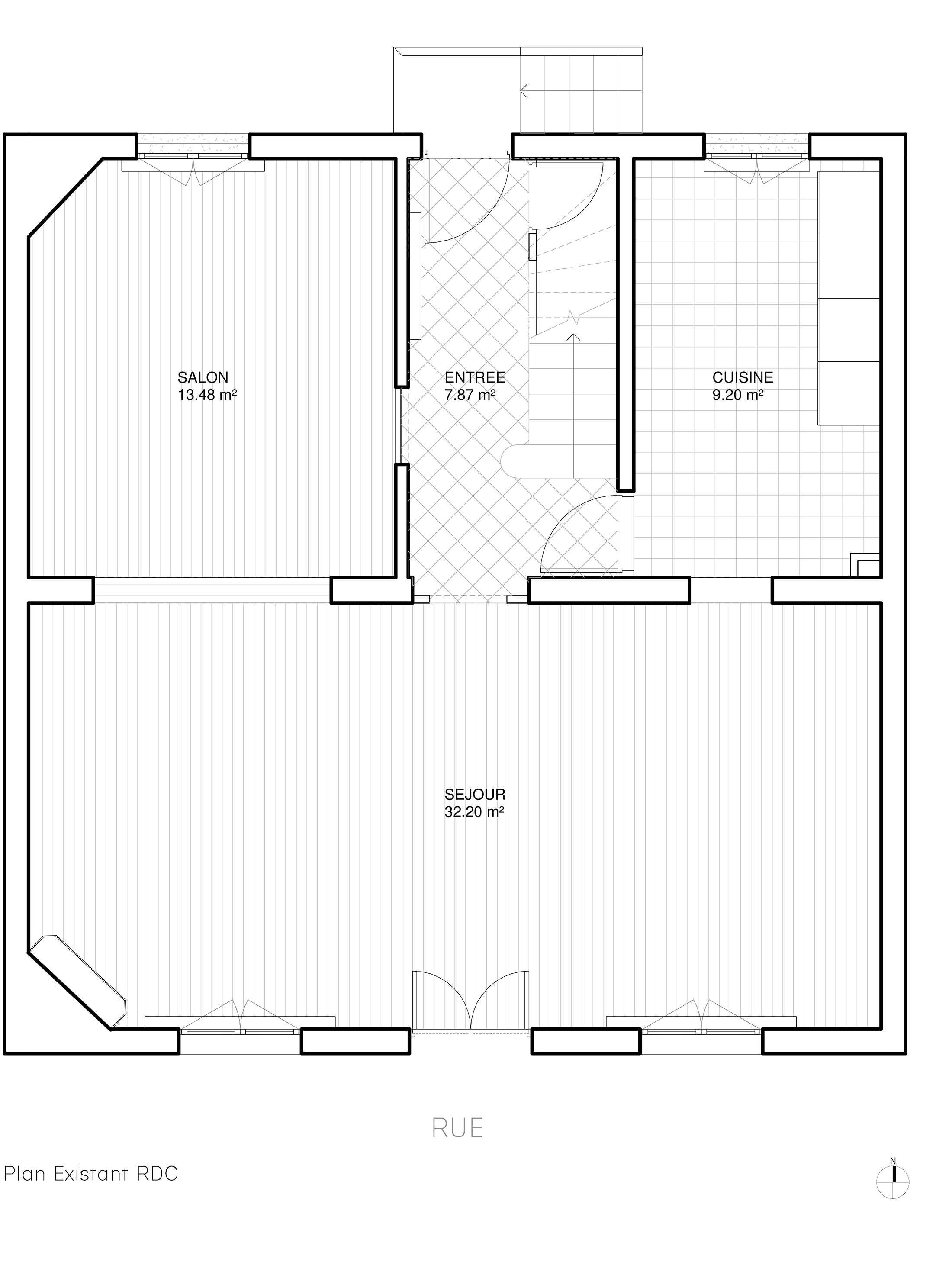
Un travail structurel lourd a été réalisé au sous-sol afin de le décaisser et accueillir un studio de musique professionnel. Le rez-de-chaussée invite à la convivialité et la suite parentale, perchée au dernier étage, bénéficie d’un généreux volume sous combles. Espaces de travail et espaces de vie se complètent et offrent à cette famille un cadre propice à la créativité.
Un confort thermique optimal est atteint grâce à l’isolation des combles et des murs en panneaux de fibre de bois, le remplacement des fenêtres et la restauration de la porte d’entrée. Dans une démarche de durabilité, l’alliance intemporelle du chêne et du blanc sublime le caractère de la maison.
.jpg)
.jpg)
.jpg)
.jpg)
.jpg)
.jpg)
.jpg)
.jpg)
.jpg)
.jpg)
.jpg)
.jpg)
.jpg)
.jpg)
.jpg)
.jpg)
.jpg)
.jpg)
.png)
.png)
.png)
.png)
.png)
.png)