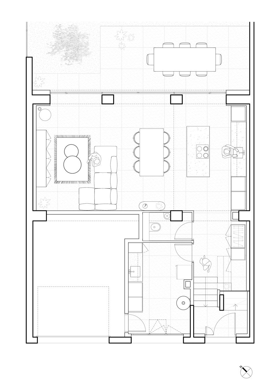
À Suresnes, cette rénovation complète d’une maison de 165m² relève un double défi : viser une performance énergétique exemplaire ; passer d’un DPE G à B, tout en révélant son potentiel architectural.
Une rénovation soutenue par l’ANAH où les matériaux biosourcés ont été privilégiés.
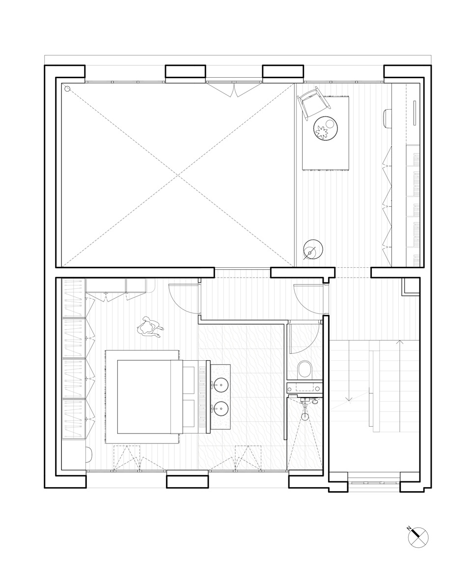
Les volumes ont été entièrement repensés afin de reconnecter la maison à son jardin. L’ancien garage a été transformé en une vaste pièce de vie lumineuse, ouverte sur l’extérieur et mise en valeur par une double hauteur. Couplés à l’aménagement des combles, ces travaux a permis de doubler la surface habitable.
Restaurés avec soin, la brique rouge, la cage d’escalier et les poutres d’origine s’intègrent harmonieusement à cette nouvelle écriture contemporaine.
Un projet alliant technicité, esthétique et cohérence environnementale pour une rénovation durable.
Crédit photos : Victor Grandgeorge
.jpg)
.jpg)
.jpg)
.jpg)
.jpg)
.jpg)
.jpg)
.jpg)
.jpg)
.jpg)
.jpg)
.jpg)
.jpg)
.jpg)
.jpg)
.jpg)
.jpg)
.jpg)
.jpg)
.jpg)
.jpg)
.jpg)
.jpg)
.jpg)
.jpg)